产品/专题

益达注册SMS3000与欧美某品牌HP300圆锥破碎机对比分析

益达注册圆锥破和欧美某品牌圆锥破并驾齐驱,在韩国混凝土企业的骨料生产线共同担任二破重任。【详细】

建筑垃圾处理

建筑垃圾资源化解决方案提供者

益达注册股份(中德合资控股企业),自 2005 年就开始关注国内建筑废弃物资源化问题,是国内建筑废弃物资源化市场的持续参与者,是将破碎筛分技术应用于建筑废弃物资源化市场并进行二次技术开发和在该市场具有较多知识产权技术的提供者,是建筑废弃物资源化运营市场的合作者。【详细】

PCX系列高效锤式细碎机

PCX系列高效锤式细碎机

PCX高效细碎机,亦称反击高效细碎机,适用于破碎抗压强度不超过200MPa的石灰石、泥灰岩、砂岩、页岩、石膏、煤等原料。 PCX系列高效细碎机具有很大的破碎腔和进料口,适宜大块矿石顺利进入,与常规破碎机相比有着明显的优势。

进料粒度:≤ 200mm

生产能力:水泥熟料:15-270t/h;石灰石:20-310t/h

应用领域:化工、建材、冶金、采矿、选煤、制砂及耐火材料等行业

适用物料:石灰石、水泥熟料、铁矿石、页岩、白云岩、花岗岩、石膏、混合材料

咨询热线:400-58205268

PCX系列高效细碎机产品优势

PCX系列高效细碎机工作原理

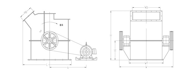
PCX系列高效细碎机主要由上下壳体,转子部分,衬板,反击装置,锤头装置组成。转子部分的轴心上有多个重叠排列的锤架,锤头装置固定在锤架之间的穿杆上。主轴两端用滚动轴承座支承机架上。衬板分成若干块固定于箱体上,保护箱体不受磨损。箱体分为上下两部分,用螺栓连接,便于拆装和检修。

物料从进料斗依次进入腔体内,下落在高速旋转的活动打击锤头上,经过锤头与反击板之间的作用,物料初步破碎在锤击区,物料多次受到高频的反复锤击和反击后下降在中隔板上,形成堆积,产生滑落,落在转子下面的筛板上,又被高速抛到反击板进行碰撞,下落并经移动式锤头强制性反击,破碎,研磨。因此,物料经过其自重下落过程中多次复合粉碎,冲刷研磨,从而实现了超细的效果。

图片展示

PCX系列高效细碎机结构图PCX系列高效细碎机结构图

PCX系列高效细碎机结构图

  • PCX系列高效锤式细碎机
  • PCX系列高效锤式细碎机
  • PCX系列高效锤式细碎机
  • PCX系列高效锤式细碎机

PCX系列高效细碎机技术参数

型号 最大进料 (mm) 平均出料 (mm) 处理能力 (t/h) 电机功率 (kw) 外形尺寸 (mm)
水泥熟料 石灰石
PCX-8040 80 3 15-20 20-25 37 1395x1506x1390
PCX-8080 80 3 25-30 30-40 45 1395x1906x1390
PCX-9080 100 3 40-45 45-50 55 1754x1906x1659
PCX-9010 100 3 45-50 50-55 75 1754x2176x1659
PCX-1010 150 3-5 50-60 60-70 90 2138x2590x2400
PCX-1210 200 3-5 60-80 70-90 110 2524x2716x2325
PCX-1212 200 3-5 60-100 70-110 132 2524x2866x2325
PCX-1414 200 5-8 70-150 70-160 200 2550x3120x2670
PCX-1616 200 5-8 100-210 110-260 250 2922x3564x2900
PCX-1818 200 5-10 120-270 130-310 315 3121x3754x3150

相关产品

项目案例

产品知识

在线询价

全国统一销售热线:400-58205268,电子邮箱:info@czjbjj.com

您可以填写下面的表格,把您的联系方式和产品需求提交给益达注册,益达注册将尽快与您联系解决,谢谢!为了能及时和您取得联系,请您务必完整填写您的联系方式和需求信息。

首页 益达注册产品